Kristen Elise's Blog, page 9
July 21, 2013
Black Death From Above
I opened the doors and stepped out onto a small balcony. Before me was a large geometrically shaped castle. Surrounding it lay a surprisingly organized aquatic parking lot lined with hundreds of small private boats. Dozens more of its occupants were out for the day, sailing casually through the crystalline crescent-shaped Bay of Naples. Beyond the bay loomed Mount Vesuvius like a massive grim reaper, a fallen angel choosing the moment to rain down its black death from above.
-Excerpt from The Vesuvius Isotope, a new novel by Kristen Elise, Ph.D.
Order your copy on Amazon (print or Kindle version,) BarnesandNoble.com (print or Nook version,) Kobo.com (Kobo version,) or iBookstore (iBooks version.) Or purchase a SIGNED copy at www.kristenelisephd.com.
Published on July 21, 2013 08:20
July 20, 2013
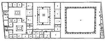
Who Owned the House of the Faun?
Built during the second century BC, the House of the Faun was one of the largest residences in Pompeii. At the beginning of this video, it is presumed that the House of the Faun was owned by an aristocratic Roman family. But its tributes to the Greek Ptolemaic Dynasty of Egypt are also noted.
House of the Faun Floor PlanSo who owned the House of the Faun?There is evidence that a woman from the Cassius family may have lived here. She certainly died here. The body of a woman was found in the house during excavations of Pompeii. She wore a ring with the engraving "Cassius," and a piece of graffiti reading "M. Cassius" was also found in the villa.
However, the Cassius family was not documented in Pompeii until after the eruption of Mount Vesuvius. The general conclusion from these conflicting pieces of evidence is that the woman found inside the House of the Faun may have married into the family that owned the villa.
The faun, or satyrThe more widely accepted owners of the villa come from the Satrii family. It is tempting to hypothesize that the "faun" that lends its name to the house is actually meant to be a "satyr," a nod to the presumed villa's owners. Moreover, an inscription found in the house refers to D. Lucretti Satrii.But there is a problem with this hypothesis as well.
If one compares the House of the Faun with the known residence of D. Lucretti Satrii, referred to simultaneously as the "House of D. Lucretti Satrii" and the "House of Venus in the Shell," one can see that the two homes could not be more vastly different. The House of Venus in the Shell pays tribute to the Roman god Mars and the Roman goddess Venus in two pieces entitled "Mars With Weapons" and "Venus in a Sea-Shell." The latter piece, of course, is the piece for which the villa was named. Also present in the house are several frescoes of fountains, birds and flowers. But no evidence of Egyptian or Greek influences.
Order your copy of The Vesuvius Isotope on Amazon (print or Kindle version,) BarnesandNoble.com (Nook version) or Kobo.com (Kobo version.) Or purchase a SIGNED copy at www.kristenelisephd.com
Alexander the Great mosaic from House of the FaunIn contrast, at 1.44 of this video we see in a shrine the massive Alexander the Great mosaic, one of the most famous works of art from Pompeii. This piece was found in the House of the Faun. The mosaic, depicting the victory of Alexander the Great over Persia, is now located in the Naples Archeological Museum.At 2.00, other notable artwork is mentioned, including several scenes from the Nile river and the mosaic Egyptian- and Greek-style flooring with its optical illusions.
Mosaic floor of House of the FaunIn contrast to the Tuscan first atrium, the second atrium is Hellenistic in style. Its columns are Corinthian. And this villa is one of the Pompeii residences to feature incrustation, a technique in which plaster is painted to represent stone or marble. This technique originated in Alexandria in the 3rd century BC, a product of the Greek Ptolemaic dynasty in Egypt.Greek and Egyptian influences were found throughout Pompeii. Of particular note was the large Temple of Isis, thought to have been built around 100 BC. But given the multiple tributes to Ptolemaic Egypt found in the House of the Faun, and the complete lack thereof in the residence of D. Lucretti Satrii, it is difficult to state with any confidence that the Satrii were the only, definitive owners of the House of the Faun. It is reasonable to hypothesize that there may have been another owner, either instead of or in addition to the Satrii, at another point in the history of the villa. And it is reasonable to hypothesize that this owner was close to the Ptolemaic Dynasty.
This blog post explores a non-fictional theme or locale that is incorporated in The Vesuvius Isotope, a novel by Kristen Elise. Order your copy of The Vesuvius Isotope on Amazon (print or Kindle version,) BarnesandNoble.com (print or Nook version,) Kobo.com (Kobo version,) or iBookstore (iBooks version.) Or purchase a SIGNED copy at www.kristenelisephd.com.
Published on July 20, 2013 09:31
See Naples and Die - an Excerpt from The Vesuvius Isotope
There was a horn and a screeching of brakes. I felt the rush of wind upon my face as a metal blur obscured my vision. I leapt back and turned my head just as a speeding car rocketed away, its driver apparently oblivious. I wondered if I had accidentally stepped into the street, but a quick look down confirmed that I was still standing on the sidewalk. And then I was almost run over again.
This time, an entire family on a moped sped by within inches of my face. A man jerked the handlebars left and right as if boxing. Behind him sat a girl of three or four, not bothering to clutch his waist. A woman straddling the rear of the bike squeezed the girl into place while curling a bag of groceries in one arm and an infant in the other like two footballs.
They scooted deftly over the sidewalk to avoid a slow-moving car, not seeming to mind that they had almost collided with a pedestrian instead. The little girl smiled at me as they passed, perfectly comfortable in her element and apparently unaware that this mode of travel could be dangerous or considered the least bit odd by anyone...
More at... http://rabbiauthor.com/2013/07/19/wel...
This time, an entire family on a moped sped by within inches of my face. A man jerked the handlebars left and right as if boxing. Behind him sat a girl of three or four, not bothering to clutch his waist. A woman straddling the rear of the bike squeezed the girl into place while curling a bag of groceries in one arm and an infant in the other like two footballs.
They scooted deftly over the sidewalk to avoid a slow-moving car, not seeming to mind that they had almost collided with a pedestrian instead. The little girl smiled at me as they passed, perfectly comfortable in her element and apparently unaware that this mode of travel could be dangerous or considered the least bit odd by anyone...
More at... http://rabbiauthor.com/2013/07/19/wel...
July 17, 2013
Kill Google First: Keeping the Internet Out of Your Story
My protagonist was racing through Egypt faster than I could type, her quest to find her husband’s killer preceding my own quest to put her latest predicament on paper before I could forget what I had in mind. The clock was ticking. Katrina had every reason to suspect that someone was hot on her trail, and that the best-case scenario was that it was Middle Eastern law enforcement. I was in the zone.
Then my editor read the section and totally deflated my ego. “Why doesn’t she just Google herself?” she asked.
D'OH!
The Internet age has created new hurdles for the author of mysteries and thrillers. What is left to investigate, when everything you need to know is right at your fingertips? Instead of action-packed, unpredictable adventures, our heroes have smart phones. Which can make for the most un-thrilling thriller ever written.
Here I offer a collection of ideas for neutralizing the digital age, or even using it to up the stakes in your story:
More at http://deniseweeks.blogspot.com/2013/...
Then my editor read the section and totally deflated my ego. “Why doesn’t she just Google herself?” she asked.
D'OH!
The Internet age has created new hurdles for the author of mysteries and thrillers. What is left to investigate, when everything you need to know is right at your fingertips? Instead of action-packed, unpredictable adventures, our heroes have smart phones. Which can make for the most un-thrilling thriller ever written.
Here I offer a collection of ideas for neutralizing the digital age, or even using it to up the stakes in your story:
More at http://deniseweeks.blogspot.com/2013/...
Kill Google First
Today I'm on Denise Weeks, Mystery Author with a guest post: Keeping the Internet out of your mystery or thriller
Published on July 17, 2013 15:36
July 15, 2013
An American Impostor in Egypt
Wearing a hijab forces one to accept one’s face for what it is. I quickly learned that even with my light brown hair neutralized, my face still says, “Not Egyptian.”
I knelt quietly on the carpet at the Muhammad Ali Mosque in the Citadel of Islamic Cairo. My shoes were left behind at the door and my hair was completely covered by the long, pure black headscarf. But rather than praying to Mecca, I was actually examining the architecture of the mosque. I’m not Muslim.
More at https://damesofdialogue.wordpress.com...
I knelt quietly on the carpet at the Muhammad Ali Mosque in the Citadel of Islamic Cairo. My shoes were left behind at the door and my hair was completely covered by the long, pure black headscarf. But rather than praying to Mecca, I was actually examining the architecture of the mosque. I’m not Muslim.
More at https://damesofdialogue.wordpress.com...
July 14, 2013
Interview with Joyce Brown
Today I'm interviewing on Joyce Brown's Cozy Mystery site - check it out! http://ning.it/18eUyNb
July 13, 2013
Interview with Maria Ruiz
Today I'm on Maria Ruiz' author blog, discussing all things books and writing! Stop by and say hello! http://ning.it/1aCeWfo
July 11, 2013
Interview with Theresa Valera
Today I'm interviewing with Theresa Valera on Latina Libations. Check it out! http://ning.it/189u8fL
July 10, 2013
Praise for The Vesuvius Isotope by Carolyn Hart!
OMG! Carolyn Hart labeled The Vesuvius Isotope "2013's Top Thriller! See full quote here! http://www.kristenelisephd.com/2013/0...


